Verkocht
Verkocht: Oude Kerkstraat 8, 4261 BL Wijk en Aalburg
Beschrijving
Deze charmante woonboerderij met mansardekap uit 1926 biedt een unieke combinatie van karakter en mogelijkheden zoals dubbele bewoning.Laat je verrassen door de enorme hoeveelheid ruimte, de veelzijdige indeling en het potentieel dat deze woning te bieden heeft, zowel voor grote gezinnen als voor wie zoekt naar een combinatie van wonen, werken en leven onder één dak.
De woning is gebouwd in 1926 en is in de afgelopen jaren gerenoveerd en gemoderniseerd. Het woonoppervlak is circa 175 m2, de inhoud van de woning is circa 971 m³. De kavelgrootte is 981 m2.
Gelegen op een prachtige locatie, op vijf minuten wandelen van de Afgedamde Maas en nabij het winkelcentrum van Wijk en Aalburg, wat wil je nog meer?
Wij kunnen ons voorstellen dat je deze buitenkans niet aan je voorbij wilt laten gaan. Graag nemen wij de tijd voor je om deze woonboerderij en locatie te komen ervaren!
De voorzieningen in Wijk en Aalburg zijn erg goed te noemen. Het dorp heeft naast een mooi winkelcentrum met o.a. een supermarkt, bakker, drogist en diverse kledingzaken ook meerdere eetgelegenheden. Daarnaast zijn er twee basisscholen, een middelbare school en diverse sportverenigingen. Vooral karakteristiek zijn de uiterwaarden. Het is hier heerlijk wandelen en met de fiets kun je een mooie tocht maken over de dijk naar de vestingstadjes Heusden en Woudrichem.
De woning is gelegen op een goed bereikbare locatie nabij de Provincialeweg N267 en binnen circa 20 minuten ben je in Waalwijk of ’s-Hertogenbosch.
Maak snel een afspraak voor een bezichtiging en ervaar zelf de ruimte en veelzijdigheid van deze woonboerderij in het gemoedelijke Wijk en Aalburg!
Indeling
Begane grond
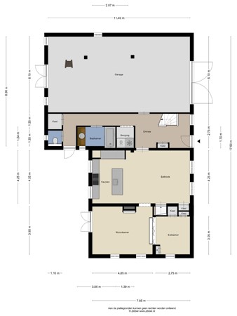
Via de karakteristieke voordeur van de woonboerderij stap je binnen in de royale hal die direct een gevoel van ruimte geeft. Hier vind je een garderobe, toiletruimte, meterkast, badkamer, berging, een praktische bergkast en de trapopgang naar de eerste verdieping.
De hal geeft toegang tot de landelijke woonkeuken met eiland voorzien van inbouwapparatuur, te weten gasfornuis, afzuigkap, oven, koelkast en vaatwasser. De keuken heeft voldoende kastruimte. De royale eetkeuken is dé plek waar gezin, familie en vrienden samenkomen. Voorzien van alle gemakken en toegang tot een handige provisiekelder.
Via de keuken loop je door naar de woonkamer die voorzien is van een houten vloer en een rookkanaal en heeft voor een gezellige houtkachel. De woonkamer heeft terrasdeuren welke toegang geven tot de tuin. De opkamer, bereikbaar via een trapje vanuit de woonkamer en voorzien van klapdeuren biedt een extra ruimte die perfect is als werkplek, leeshoek of speelkamer. De ramen zijn voorzien van “ouderwetse” binnen luiken wat nog meer sfeer geeft aan het woongenot.
De badkamer op de begane vloer heeft een bad met douchevoorziening, wastafel met meubel en een designradiator.
Eerste verdieping
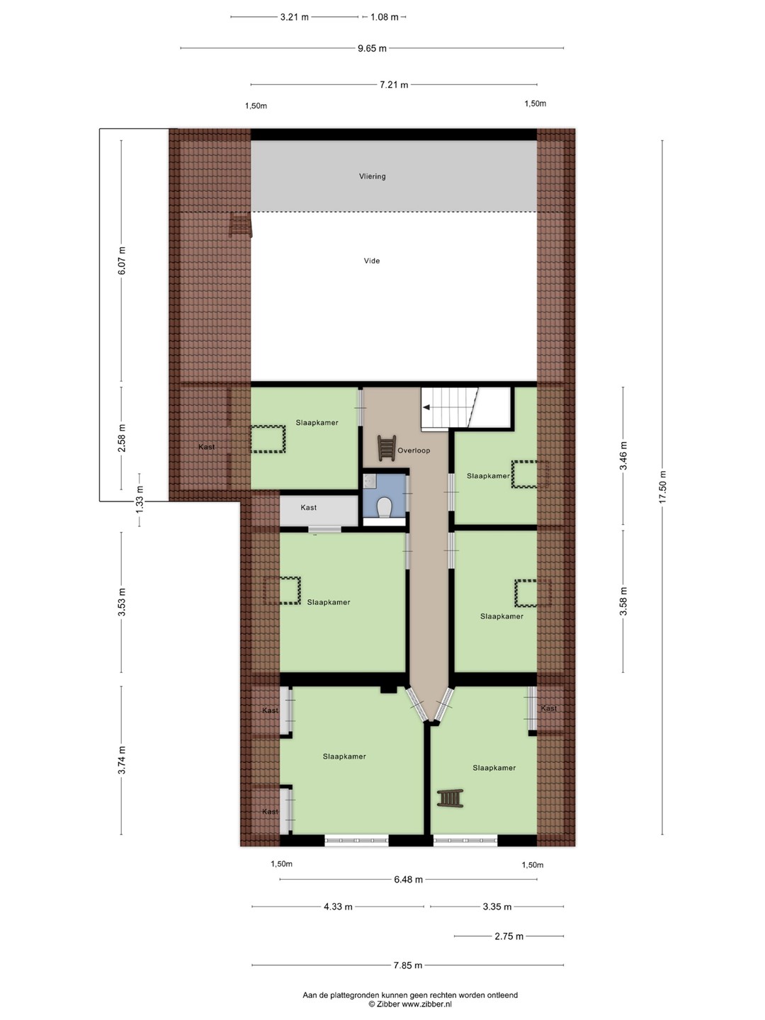
Op de eerste verdieping komt de landelijke stijl van de begane grond terug. De verdieping is verrassend ruim ingedeeld met maar liefst 6 slaapkamers, een overloop met vide en een toilet. De gehele verdieping is voorzien van een parketvloer verder zijn er praktische inbouwkasten.
Garage:
Ruime garage met zolder, deze ruimte biedt tevens de mogelijkheid om een extra woonruimte creëren.
Tuin:
De ruime achtertuin met terras heeft aan beide zijden een vrije achterom en is gelegen op het zuidwesten. Verder staat in de tuin nog een hobbykastje, perfect voor mensen met groene vingers.
De kenmerken:
Bouwjaar : 1926
Verwarming : C.V.-ketel Nefit Trendline HRC30/CW5
Woonoppervlakte : 175 m2
Perceeloppervlakte : 981 m2
Inhoud : 971 m³
Bouwaard : traditioneel met steensmuren en voorzetwanden.
Isolatie : Dak- , gevel- en vloerisolatie, HR++ glas,
Vloeren : houten vloeren
Ramen, deuren en kozijnen : hout
Energielabel : C
Groepenkast : 7 groepen 16A, 2 aardlekschakelaars, 1 kookgroep en 1 krachtstroomgroep.
Aanvaarding en oplevering : in overleg
Vigerende Bestemmingsplan : wonen, dubbele bewoning toegestaan
Erfdienstbaarheid : nee
Asbest : nee
Enthousiast geworden? Wij laten je deze woning graag zien! Maak vrijblijvend een afspraak om deze woning te komen bezichtigen.
Van de koper wordt een waarborgsom of bankgarantie gevraagd van 10% van de koopsom, binnen 5 weken na het ondertekenen van de koopovereenkomst.
In de koopovereenkomst zal een ouderdomsclausule worden opgenomen.
De door Pullen Makelaardij o.g. verstrekte informatie dient uitsluitend te worden gezien als een uitnodiging tot nadere informatie, bezichtiging of het uitbrengen van een bod. Wijzigingen in uitvoering voorbehouden. Aan onvolkomenheden in de vermelde gegevens en schaal kunnen geen rechten worden ontleend.
Kenmerken
| Overdracht | |
|---|---|
| Referentienummer | VGP3000480 |
| Vraagprijs | € 799.000,- k.k. |
| Inrichting | Niet gestoffeerd |
| Inrichting | Niet gemeubileerd |
| Status | Verkocht |
| Aanvaarding | In overleg |
| Aangeboden sinds | Woensdag 15 oktober 2025 |
| Laatste wijziging | Woensdag 3 december 2025 |
| Bouw | |
|---|---|
| Type object | Woonhuis, woonboerderij, vrijstaande woning |
| Soort bouw | Bestaande bouw |
| Bouwperiode | 1926 |
| Dakbedekking | Dakpannen |
| Type dak | Mansardedak |
| Isolatievormen | Dakisolatie Dubbel glas HR-glas Muurisolatie Vloerisolatie |
| Oppervlaktes en inhoud | |
|---|---|
| Perceeloppervlakte | 981 m² |
| Woonoppervlakte | 175,1 m² |
| Keukenoppervlakte | 33,36 m² |
| Inhoud | 971 m³ |
| Oppervlakte overige inpandige ruimten | 86,9 m² |
| Indeling | |
|---|---|
| Aantal bouwlagen | 3 |
| Aantal kamers | 8 (waarvan 6 slaapkamers) |
| Aantal badkamers | 1 (en 2 aparte toiletten) |
| Locatie | |
|---|---|
| Ligging | In woonwijk Platteland |
| Tuin | |
|---|---|
| Type | Achtertuin |
| Hoofdtuin | Ja |
| Oriëntering | Zuid-west |
| Heeft een achterom | Ja |
| Staat | Prachtig aangelegd |
| Energieverbruik | |
|---|---|
| Energielabel | C |
| CV ketel | |
|---|---|
| Warmtebron | Gas |
| Bouwjaar | 2014 |
| Combiketel | Ja |
| Uitrusting | |
|---|---|
| Aantal parkeerplaatsen | 2 |
| Aantal overdekte parkeerplaatsen | 1 |
| Warm water | CV-ketel |
| Verwarmingssysteem | Centrale verwarming Houtkachel |
| Badkamervoorzieningen | Ligbad Wastafelmeubel |
| Parkeergelegenheid | Aangebouwde stenen garage |
| Heeft een rookkanaal | Ja |
| Tuin aanwezig | Ja |
| Heeft een garage | Ja |
| Telefoonaansluiting aanwezig | Ja |
| Beschikt over een internetverbinding | Ja |
| Heeft een dakraam | Ja |
| Kadastrale gegevens | |
|---|---|
| Kadastrale aanduiding | Aalburg F 2588 |
| Perceeloppervlakte | 981 m² |
| Omvang | Geheel perceel |
| Eigendomsituatie | Eigen grond |